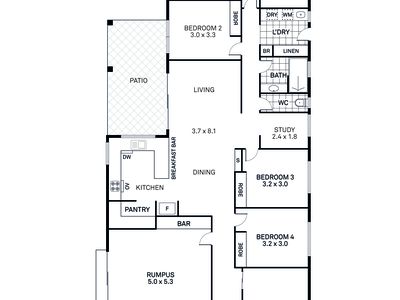
Welcome to your dream home at 16 Moor Court, Kelso! This contemporary 4-bedroom residence, constructed in 2022, offers a perfect blend of modern living and family-friendly features, all set on a generous 700 sqm block. With a building area of 192 sqm, this home provides ample space for the whole family. The open-plan living and dining areas are perfect for entertaining or relaxing after a long day.
Enjoy four well-sized bedrooms, including a master suite with a private ensuite. The additional bathroom and two separate toilets ensure convenience for family and guests alike. Stay comfortable year-round with split system air conditioning and ceiling fans throughout. The home also features stylish floorboards and built-in robes in all bedrooms, providing both elegance and functionality.
Need a quiet place to work or study? The dedicated study area is perfect for remote work or homework sessions. Plus, the rumpus room offers a fun space for kids to play or for family movie nights. Step outside to your fully fenced backyard, ideal for children and pets to roam freely. The outdoor entertaining area is perfect for summer barbecues, and the inground pool will be your private retreat on hot days.
- 4 Bedrooms built in robes
- 2 Modern Bathrooms
- Large Study Nook
- 700m2 Block
- 15 amp outdoor caravan power point
- Fully Airconditioned and ceiling fans throughout
- 2022 Build Front Foot Constructions
- 3 Living spaces including media room, rumpus and open planned living
- Open Planned living/dining area
- Modern kitchen with ample storage including walk in pantry
- Solar Power System
- Inground Swimming Pool
- Large Garden shed
- Double side access
- Room for a powered shed
This home is equipped with solar panels, helping you save on energy costs while being kind to the environment. Situated in a peaceful neighborhood, you'll enjoy the benefits of suburban living while still being close to local amenities, schools, and parks.
This property at 16 Moor Court is not just a house; it's a lifestyle waiting to be embraced. Don't miss your chance to make this stunning family home your own.
Contact us today to arrange a viewing and experience all that this beautiful property has to offer!
Features
- Air Conditioning
- Outdoor Entertainment Area
- Swimming Pool - In Ground
- Fully Fenced
- Built-in Wardrobes
- Rumpus Room
- Floorboards
- Study
- Solar Panels































